陈宏裕
业务精英 ,熟悉房源信息
13823705568
欢迎您致电咨询
芒果网大厦办公室出租
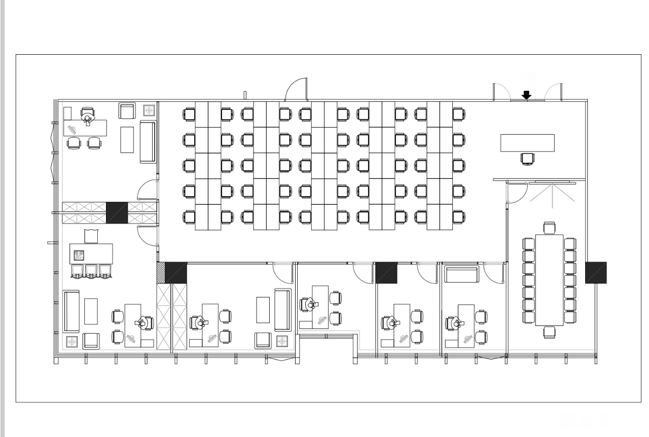
◽️ 面积 :750平
◽️ 格局 :7+1 工区可坐50人
◽️ 朝向 :东南
◽️ 租金 :118元/㎡
◽️ 管理费含空调维护费:30元/㎡
◽️ 空调:24小时计冷量
◽️ 交通:9号线深大南A出口230米
——————————————
🔹共享配套:高端茶室、会议室、大型路演厅、电话亭、咖啡吧、茶水间、共享休闲区
🔹项目介绍:芒果网总部大厦位于深圳市南山区,是一座集办公、商务、会议、酒店等功能于一体的高标准、智能化、综合性商务大厦
近深大南站200米,位置紧挨腾讯、百度等知名企业大厦,周边北京银行、亚朵酒店、超级猩猩、79号渔船、黑桃ktv、赛德阳光口腔、海岸城海雅缤纷等商场,美食休闲玩乐办事出行一应俱全